
「青山一丁目駅」徒歩3分
ハイセンスが揃う絶好のエリアで視認性にも優れた路面店
東京メトロ銀座線「青山一丁目駅」徒歩3分、「外苑前駅」までも徒歩4分の立地。
ハイセンスが揃う北青山のエリアでの路面店区画をご紹介します。

外観からも一際存在感を感じられる本物件。
ガラス張りで中の様子が見ることができるクリーンさに加え、視認性が高く集客が見込める路面店区画です。

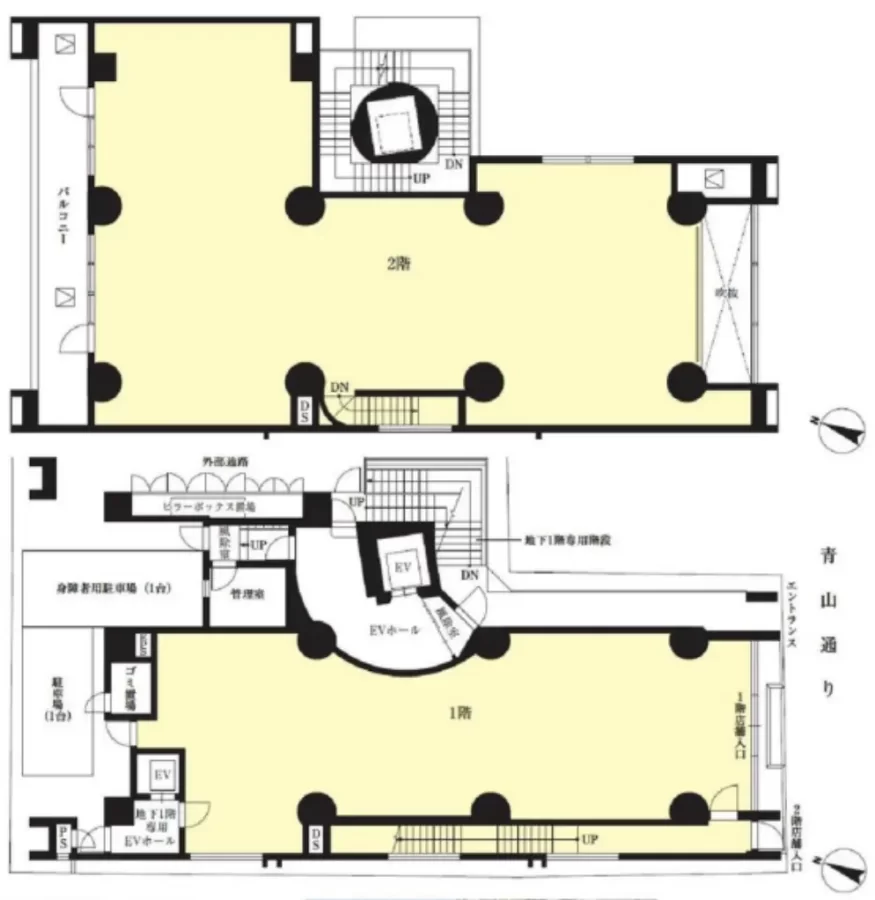
一階は長方形で奥行きのある間取りとなっています。入り口から光が入ってきて、明るい印象を受けます。

路面に面する位置にはレコメンド商品や広告物となるものを配置し、この視認性の高さを十分に活かしていただきたいです。
奥のスペース上にも窓が設置されているので、自然光も多少入ります。
奥のスペース上にも窓が設置されているので、自然光も多少入ります。
2階は正面のガラス張り部分からの光と1階との吹抜け空間を活かし、ディスプレイによって大きく印象を変えられるのではないでしょうか。
事務所利用であっても、洗練された空間をつくることができそうです。

2階はL字の間取りとなっており、執務室と来客スペースをしっかりと分けることもできそうです。

北青山のダイレクトイン可能な贅沢物件。
軽飲食、美容、クリニック、物販と幅広い業種で出店可能となっています。
ぜひお気軽にお問い合わせくださいませ。





