
「浜松町駅」徒歩3分、アクセス良好のベイエリア
スケルトン天井が魅せる新築セットアップオフィス
羽田空港へのアクセスもスマートで、都心のスピード感と水辺のゆるやかさが同居する注目エリア。

ブラックとグレーのツートーンがモダンな印象を与え、低層部の全面ガラスがエントランスに開放感をもたらしています。

天井はスケルトン仕様。
インダストリアルな雰囲気と最新の照明・空調が組み合わさり、無骨さと機能美を兼ね備えた空間となっています。


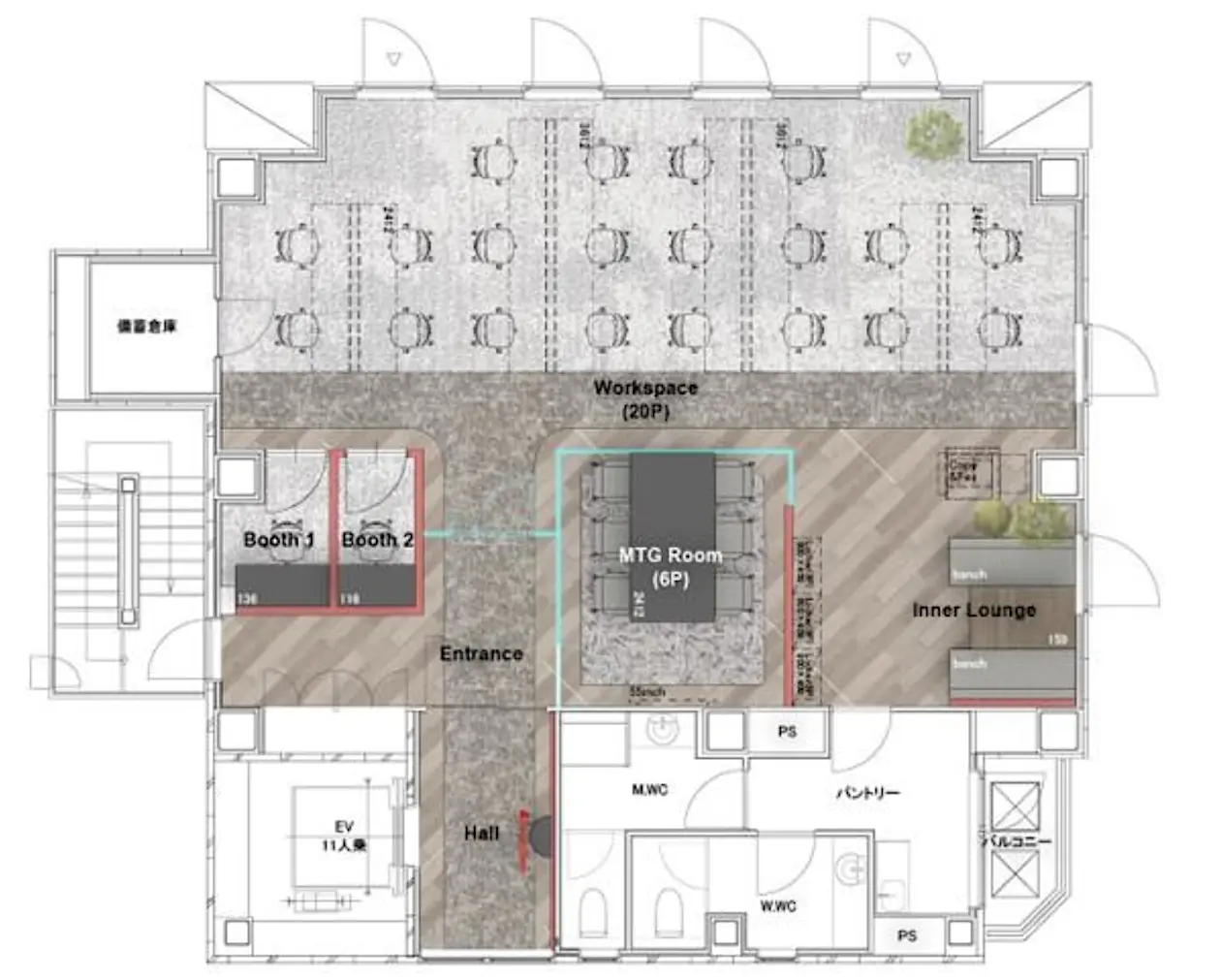
カジュアルなミーティングにも活用が効きます。


各フロアにストレージスペースの小部屋も。


男女別のトイレがある点も嬉しいポイントです。

これからの働き方をアップデートする拠点として最適ではないでしょうか。




