
※ 1階のみ募集中です。
「原宿駅」徒歩2分
活気あふれる原宿の中心に誕生した開放的な新築物件
「原宿駅」まで徒歩2分、明治神宮前駅まで徒歩4分という活気に満ちたエリアに新築物件が誕生しました。
WITH HARAJUKUと竹下通りを繋ぐ道沿いに本物件があり、周辺は外国人観光客や若者で賑わっております。

外観は落ち着いた配色のレンガがあしらわれており、アイアンの手摺がスタイリッシュさを演出しています。
原宿という最先端の街に位置していますが、落ち着きも感じられるデザインとなっています。

まずは4階の区画をご紹介します。全体が窓に覆われており、採光は十分にとることができます。
バルコニーもついておりますので、ちょっとした休憩や息抜きにご利用いただけます。


こちらは3階の区画。3階には、ハワイのアーティストさんが描いた壁画がついておりポップな原宿らしさを感じられます。
サービス店舗や物販などでの利用には十分すぎる立地に広さを兼ね備えています。
スケルトン渡しですのでこだわり抜いたオリジナルの空間に仕上げていただきたいです。
こちらは2階区画。2階までの区画に関しては飲食店も可能となっています。
ダイレクトインが可能な作りに加え、竹下通りに抜ける裏道とも繋がっているため通行人の目に止まる確率は非常に高くなっています。
広さに加え天井高も3.6mはありますので、空間の使い方の幅は広いのではないでしょうか。
スケルトン渡しですのでこだわり抜いたオリジナルの空間に仕上げていただきたいです。
こちらは2階区画。2階までの区画に関しては飲食店も可能となっています。ダイレクトインが可能な作りに加え、竹下通りに抜ける裏道とも繋がっているため通行人の目に止まる確率は非常に高くなっています。
広さに加え天井高も3.6mはありますので、空間の使い方の幅は広いのではないでしょうか。

こちらは1階区画。入り口が2ヶ所ある店舗利用には嬉しい作り。
WITH HARAJUKUと竹下通りを繋ぐ道沿いとはいえ、人通りは絶えずありますので集客のチャンスは多くあるでしょう。

こちらは地下1階区画。こちらも外階段でダイレクトインが可能な作りとなっています。本物件の区画の中では一番天井高が高く4mあるため、かなり広々とした開放的な空間になっています。
自然光も入り口付近までは入ってくるため、地下のジメっとした印象は受けにくくなっています。
自然光も入り口付近までは入ってくるため、地下のジメっとした印象は受けにくくなっています。

原宿という流行最先端の街に新たに誕生した新築物件。一棟貸しもフロア貸しも可能となっております。
恵まれた環境と、インバウンド需要の両方を自らの手で掴み取る。原宿の地でビジネスを成功させませんか。
賃料: 1F-B/¥1,799,850(税込 ¥1,979,835)
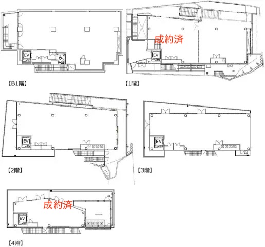
2F/契約済み
3F/契約済み
4F/契約済み
B1F/契約済み
共益費:なし
住所:渋谷区神宮前1
広さ:1F/205.25㎡(62.08坪)
住所:渋谷区神宮前1
広さ:1F/205.25㎡(62.08坪)
2F/178.53㎡(54坪)
3F/147.42㎡(44.59坪)
4F/68.01㎡(20.57坪)
B1F/236.38㎡(71.5坪)
アクセス:JR山手線「原宿駅」徒歩2分、東京メトロ副都心線・千代田線「明治神宮前駅」徒歩4分、千代田線・半蔵門線・銀座線「表参道駅」徒歩13分
構造・規模:SRC造 地下1階付き地上4階建
築年:2024年
敷金:相談
礼金:なし
備考:定期借家契約(年相談)、再契約料(なし)、保証会社利用必須(指定)、火災保険必須、入居時期(即日)、
アクセス:JR山手線「原宿駅」徒歩2分、東京メトロ副都心線・千代田線「明治神宮前駅」徒歩4分、千代田線・半蔵門線・銀座線「表参道駅」徒歩13分
構造・規模:SRC造 地下1階付き地上4階建
築年:2024年
敷金:相談
礼金:なし
備考:定期借家契約(年相談)、再契約料(なし)、保証会社利用必須(指定)、火災保険必須、入居時期(即日)、
〈上記以外で契約時に掛かる主な費用〉
・仲介手数料(賃料1.1ヶ月分(税込))
・前家賃(1ヶ月分)
・日割り家賃(月途中での賃料発生の場合)
・初回保証委託料(賃料合計の最大100%)
・火災保険料





