
※現在は9Fのみ募集中
茅場町、再リノベで落ち着きと遊び心を兼ね備えたデザイナーズ
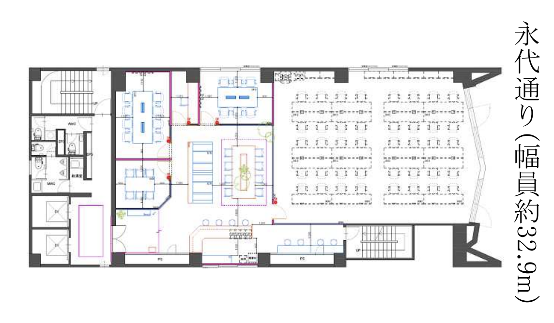
会議室複数設置済のセットアップオフィス
東京メトロ日比谷線・東西線「茅場町駅」徒歩6分、JR京葉線「八丁堀駅」徒歩9分。
数年前から大規模リノベーションで進化を遂げている物件をご紹介します。
2022年8月末に室内がリニューアルされ、受付スペース・会議室・リフレッシュスペース付の贅沢な空間となりました。
2022年8月末に室内がリニューアルされ、受付スペース・会議室・リフレッシュスペース付の贅沢な空間となりました。

前面ガラス張りで存在感のあるファザード。こちらも2022年9月末にリニューアル完成予定です。明るく清潔感のあるエントランス・EVホールは2018年にリニューアルされたものです。
今回はセットアップリノベ済となりました6階から9階の各区画をご紹介します。
今回はセットアップリノベ済となりました6階から9階の各区画をご紹介します。

中央にあるリフレッシュスペースの緑は、フロアのどこからでも目に入ります。
インパクト抜群で遊び心のあるデザインですが、カフェのようでリラックスできそうな空間です。
入り口付近の会議室はナチュラルカラーを基調としており、一部ガラス面で開放感があります。
他にもデザインの違う2つの会議室があり、多様な用途に対応できそうです。

インパクト抜群で遊び心のあるデザインですが、カフェのようでリラックスできそうな空間です。
入り口付近の会議室はナチュラルカラーを基調としており、一部ガラス面で開放感があります。他にもデザインの違う2つの会議室があり、多様な用途に対応できそうです。


石張りのエントランスが特長的な区画。
中央にワークスペースを据え、窓側にリフレッシュスペースがあります。
緑を下から照らすライティングで、天井に木の陰が浮かび上がる面白い空間です。
大きさの異なる2つの会議室があります。
中央にワークスペースを据え、窓側にリフレッシュスペースがあります。
緑を下から照らすライティングで、天井に木の陰が浮かび上がる面白い空間です。
大きさの異なる2つの会議室があります。
モノトーン調が落ち着いていてモダンな室内です。
カーペット部分の縁取りやペンダントライトのゴールドカラーがよく映えています。
6階と9階は室内のレイアウトが似ていますが、6階の方がやや大きな規模です。
6階と9階は室内のレイアウトが似ていますが、6階の方がやや大きな規模です。

入口付近の会議室はフロアのトーンと合わせたシックな内装です。

室内の内装と調和するデザインで、各フロア新築同様の清潔感のある水回りが完備されています。
男女別・複数設置で大人数でも快適にお使いいただけそうです。
男女別・複数設置で大人数でも快適にお使いいただけそうです。

豊富な設備と会議室で入居後の稼働率が高くなるであろうセットアップオフィス
ぜひご検討ください。
ぜひご検討ください。
賃料:¥2,063,280(税込¥2,269,608)
共益費:賃料に含む
住所:中央区新川1
広さ:284.2㎡
アクセス:東京メトロ日比谷線・東西線「茅場町駅」徒歩6分、JR京葉線「八丁堀駅」徒歩9分
構造・規模:RC造 地上9階建 2階部分
築年:1989年
敷金:7ヶ月
礼金:無し
備考:普通借家契約(2年間)(更新料:新賃料1ヶ月分)、保証会社利用必須、火災保険必須
駐車場設備あり(総台数2台/平置2台) ※空台数等については個別にお問い合わせください。
共益費:賃料に含む
住所:中央区新川1
広さ:284.2㎡
アクセス:東京メトロ日比谷線・東西線「茅場町駅」徒歩6分、JR京葉線「八丁堀駅」徒歩9分
構造・規模:RC造 地上9階建 2階部分
築年:1989年
敷金:7ヶ月
礼金:無し
備考:普通借家契約(2年間)(更新料:新賃料1ヶ月分)、保証会社利用必須、火災保険必須
駐車場設備あり(総台数2台/平置2台) ※空台数等については個別にお問い合わせください。
〈上記以外で契約時に掛かる主な費用〉
・仲介手数料(賃料1.1ヶ月分(税込))
・前家賃(1ヶ月分)
・日割り家賃(月途中での賃料発生の場合)
・初回保証委託料(賃料合計の最大100%)
・火災保険料




